云艺帆首页

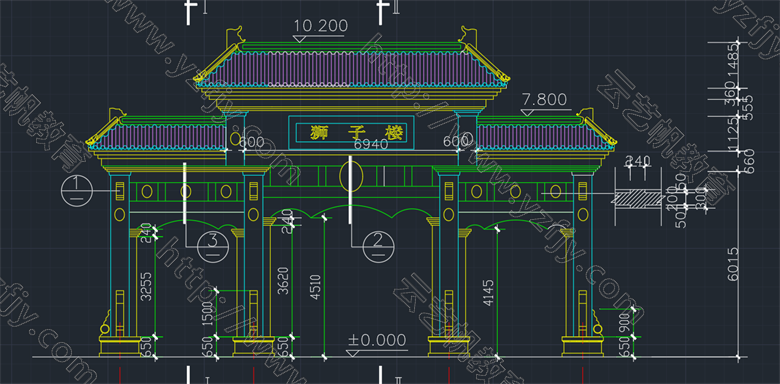
CAD图纸-牌楼建筑施工图

  • Sherlomen
  • 2018-08-31
  • 318
  • 1
  • 0
  • 下载说明:
  • 1.本站所有资源2018年均不收费,仅使用积分下载。
  • 2.积分可通过评论、发布资源、分享、签到等方式获得!
  • 3.本站资源大部分采集网络与用户分享,如有侵权请联系我们删除!

意见反馈:

相关推荐 换一批