PPT-2013零基础入门全面精通
绘声绘影X8零基础入门全面精通
CDR-X6零基础入门全面精通
AI-CC2018零基础入门全面精通
CAD-2007零基础入门到精通
AECC零基础入门全面精通
客服小艺 关注TA
关注人数:1380
蓉蓉 关注TA
关注人数:291
澎湃 关注TA
关注人数:59
隔壁老王 关注TA
关注人数:326
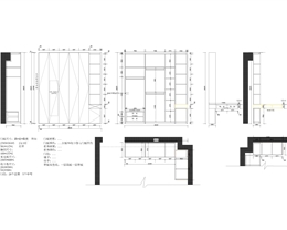
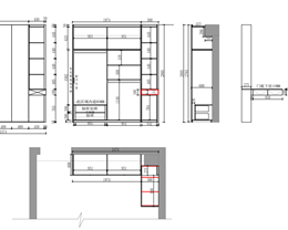
【2302期】第11节:横梁卧室衣柜带书桌外观设计
每个学员每天可以免费学习课
您今日已经学习了课,分享了次,还剩次学习机会
QQ扫一扫加群
认真评价课程可获得40积分哦~ 发表评论
蓉蓉老师特别专业,课程讲的越来越详细了,通俗易懂,设计工艺都是当下最流行的,与时俱进,设计就是要不断的学习才能满足客户的需求!谢谢老师!!!
同学有没有一起学习的加我Q654321260一起学习交流
同学有没有一起学习的加我Q654321260一起学习交流
老师讲课很好
老师讲课很好
老师讲课很好
老师讲课很好
老师为什么不讲一些木饰面和隐形门的课程
蓉蓉老师,讲的非常棒!
老师讲课很好
老师讲的很详细,都是知识要点
老师讲的很详细,也很实用,谢谢老师